El encargo surge del fallo de un concurso realizado por la EMV de Alcalá de Henares.
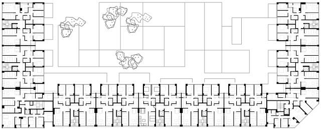
El proyecto se distribuye situando los locales comerciales de planta baja a lo largo de la lineación. Las viviendas tienen doble orientación, y se distribuyen en viviendas de dos, tres y cuatro dormitorios. El garaje cuenta con ventilación natural debido a la posición del edificio y el desnivel de la parcela.
El proyecto se distribuye situando los locales comerciales de planta baja a lo largo de la lineación. Las viviendas tienen doble orientación, y se distribuyen en viviendas de dos, tres y cuatro dormitorios. El garaje cuenta con ventilación natural debido a la posición del edificio y el desnivel de la parcela.


